儲かる飲食店のプロデュース
脱サラで儲かる成功する飲食店の業種と始め方
  • トップページ
  • 開業のお手伝い
  • プロフィール
  • お問い合わせ
儲かる飲食店のプロデュース
  • トップページ
  • 開業のお手伝い
  • プロフィール
  • お問い合わせ
  • トップページ
  • 開業のお手伝い
  • プロフィール
  • お問い合わせ
閉じる
  • HOME
  • 儲かる物件、立地、坪数について
  • ラーメン店平面図

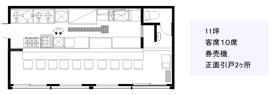
ラーメン店平面図

◆儲かる 開業相談

  • 開業のお手伝い
  • 儲かる物件、立地、坪数について
  • 儲かる業種、売上を伸ばす方法
  • 十割そば、導入講座 5,000円
  • とんかつ、繁盛講座 5,000円
  • 低資金で、儲かる業種の始め方
  • 主な開業実績

◆ 施工事例

  • 施工事例 ④
  • 施工事例 ③
  • 施工事例 ②
  • 施工事例 ①

◆ 業務案内

  • 厨房設計施工
  • 内装工事について
  • プロフィール
  • サイトマップ
© 儲かる飲食店のプロデュース