
開業リスク診断+相談(5,000円)で、あなたの悩みを解消します。オンライン全国対応
失敗の8割は、診断ミス・・・
物件選びを間違えると大金をドブに捨てることに!
- 内装工事のムダを省いて100万円安くなることもあります。
- 厨房機器の正しい選定で50万円以上得することもあります。
- 動線と設計で売上が毎月30万円変わることもあります。
また、こんな悩みありませんか
- この物件、店舗工事にいくらかかるの?
- 客席と厨房、レイアウトはどうすればいいの?
- 水道・ガス・電気、排気工事は問題ないか?
- 融資、借入、リースはどうすればいいの?
あなたの疑問について、すべてお答えします。
開業リスク診断+相談、で答えを導きます
店舗診断の事例、評価は5点
2026年4月12日(日曜日)、直近の事例です(都内)。
居抜き店舗の内見調査および「うなぎFC店の居抜き店舗を蕎麦店に」という旨の相談でした。(店舗診断)

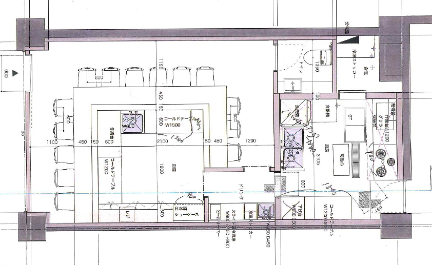
下記が居抜きの図面です。現場訪問してレイアウト図面を考えて予算を出しました。(訪問診断22,000円)

ポイントは客席を7組にすること、グループ客、一人客にも対応すること。既存は店の都合ですが、お客様側で気ly九堰レイアウトを考えました。できれば入口を中央にすることと、厨房からの出し口を作ることです。

予算について、内装工事150万円、厨房機器は既存を利用しますので追加で70万円、看板、家具、製麺機150万円・・・などで総額500万円位、居抜き物件なので新規より半値以下で開業できる計算です。
私の評価は10点満点で5点です。 メニュー・スタッフ・販促に問題なければ6~7点の合格物件です。
失敗しにくい店づくりの再現性を提供します
飲食店の成功は、だれが、どこで、何を、どう売るか、この4つがキーです。
私はこの4つすべてを設計し、売上につながる店づくり をサポートします。
成功実績 (店名非公開)
今日までの実績を紹介、店名は守秘性のため原則非公開、※看板写真は掲載していません.
焼肉ホルモン店 予約の取れない繁盛店
実は他社で契約寸前で当社に相談がありました。契約段階でどうしても納得がいかなかったようで・・・、最初にお断りしたのですがその後も電話を頂いたので相談させていただきました。
検討した結果、客席レイアウトと排気工事に問題がありました。 客席の取り方はとても重要です。カウンター席とテーブル席を設けました。それに伴う炭火の排気がポイントでした。ビルの3階屋上排気。


カフェレストラン(渋谷)
こちらのお店は3年前に大宮店で最初の仕事をさせて頂きました。昨年は新宿店、今回は渋谷店です。どこも家賃お高い一等地です。規模はどこも30坪以上です。
スケルトンから設計施工、内装工事・厨房設計施工。渋谷の一等地、厨房はパントリーと一体で効率重視の設計に変更、消防対策と検査の立ち合いもしました。


自宅を“十割そばと和食の店”
他社で話が進んでしましたが見積段階で内装工事に3,000万円以上という提案だったそうです。そこで当社に相談がありました。結局、設計から内装、厨房設計施工までサポートさせて頂きました。結果的に半額位で開業されました。
店舗設計、内装工事、厨房設計施工など一式。正面の門から玄関入り口までのアプローチ、客席はテーブルとベンチ椅子席、厨房設計と導線、メニュー、食材仕入れ等


“十割そば専門店” 女性のスタッフだけで繁盛店
開業相談からスタート、そば機のデモからお手伝いさせて頂きました。
更地からの店舗立ち上げ、設計プランニング・厨房設計施工、客席レイアウト、家具設置、食器選定、そば粉仕入れ、製麺機の導入まで一式、建築工事は地元の工務店、女性だからかカフェのような雰囲気に・・・。


プロフィール
飲食店“開店改装”コンダクター、
今年で40年の開業リスク診断士、
厨房・客席・内装・演出・集客の総合プロデューサー
- 40年の現場経験、総合商社上がり
- 厨房設計・内装工事・導線改善
- メニュー演出・販促物の企画制作
- 施工会社・設備会社とのネットワーク
- 開業後のフォローは随時無料相談

訪問診断 22,000円
料金:交通費込、税込み 22,000円/90分
(右図参照)
- 物件の可否、リスク診断
- 投資回収と売上予測
- 他社の見積チェック
- 設計、図面診断、その他

正直に言うと、
内装と厨房機器で100万~300万のムダが出るのは普通、そこをチェックしませんか
訪問相談の事例を紹介
下記は2026.3月 居抜き物件でカフェバーを計画、内見調査でレイアウト図面作成、見積提出


内装は既存を利用、新しく厨房機器を選定して設計して見積しました。食洗機、冷凍冷蔵庫、コールドテーブル、製氷機、冷蔵ショーケースなど合計で200万円位、リースも検討・見積提出(新品の場合)
開業改装、実務伴走サポート
- 内見調査・物件判断
- 設計プランニング
- 厨房設計 施工
- 厨房機器は中古利用OK
- 内装工事はDIY、外注OK
低資金での開業を応援、あなたの予算に合わせた「開業改装」実務伴走サポート
開業実績250件以上、開業相談1000件以上

新規開業から改装リニューアル、メニュー改善から業態変更まで・・・
売上に貢献する店づくりをテーマに40年の経験がございます。

どんな業種でも対応!
カフェ、ラーメン、から揚げ、とんかつ店、そばうどん店、パンベーカリー、ケーキスイーツ店、たい焼き、焼肉、お好み焼き店…あなたに合わせてサポート致します。

とんかつ店の改装リニューアル、総合サポートで売上アップ店
改装リニューアル一式、改修工事・ベンチ椅子席・小上がり席で宴会・販売促進・メニュブック製作・SNS・食器演出等、売上を伸ばす一式


カフェレストラン(イタリアン) 居抜き店舗の設計プロデュース
内装工事はクロスの張替え中心で格安に、厨房機器は既存と新品で組合せで格安、看板デザインに販売促進も対応


“つけ麺”の開業事例、開店当初から今も人気のお店です。
スケルトンから設計施工、ワンオペでも可能なカウンター席、内装工事対応、特大看板のデザイン設置、販促等など


手打ちそば店の改装リニューアル一式
店舗改装リニューアルの事例、店内改装・家具交換・メニューブック・メニュー構成・販売促進デザイン・看板デザイン工事、売上も大幅にアップ!


ラーメン店に改装工事 3等地でも人気のラーメン店
カフェの居抜き店舗をラーメン店に改装、厨房の奥行きが狭いのと排気工事がネック、都内の有名店に勤めて独立、メニューと味が評判の人気店です。

人気の“から揚げ”全国チェーンの店 トータルサポート
6坪の事務所仕様の物件を唐揚げ店に、店舗設計・内装工事・厨房設計施工、看板販促物まで対応、ドライキッチン、置型グリーストラップで低コスト内装工事


100年以上前の民家をカフェに、厨房設計施工 内装はDIY
観光地ということでお店は大盛況、当社で厨房設計施工、内装は既存利用してDIYで足りました。その他メニュー相談など。

自宅の民家をうどん屋に 定年退職後の成功事例
開業相談からスタート、設計プランニング、厨房機器の選定から3D厨房設計施工、DIYで内装工事、長期間かかりましたが低資金で造れたお店です。


ケーキ店、スケルトンから開業
スケルトンからの設計施工・内装工事、厨房設計施工、デッキオーブンは中古を導入しました。


新規で焼鳥居酒屋、昼から繁盛店に
JRの高架下物件ということで規制が厳しい工事でした。男女別トイレ設置で客席数を多く求めた店舗設計です。


レストランバー 隠れ家的な優良店 参考になるお店です
スケルトンからの内装工事、店舗レイアウト・厨房設計施工を担当、リゾート・レストランのイメージ、宴会も想定しての設計、カウンター席・消防対策あり、看板デザインなども対応、立地条件を覆す優良店


売上をつくる 4つの設計
飲食店の成功は だれが、どこで、何を、どう売るか この4つで決まります。
① だれが(姿勢・情熱)・・・・経営者、スタッフで売上が変わる
- 接客態度、気配り
- 気配り、おもてなし
- スピード、待たせない
②どこで(立地・物件)・・・・利用動機の空間づくり
- 厨房設計、導線
- 客席レイアウト
- 家具・客席・雰囲気
③何を売るか(メニュー・味)・・・・構成と演出が大事です
- メニュー、TPO構成
- 盛付、食器、演出
- 利用動機を想定
④どう売るか(販売方法)・・・・集客の仕組みをつくる
- ファサード、外観イメージ
- SNS、口コミ・写真
- 販促物、メニューブック
失敗するなら開業するな!後悔しない店づくり
あなたは、大金をドブに捨てても平気ですか?
飲食店を開業するには大金が必要です。もしも失敗すると大金と費やした時間と夢まで失ってしまいます。そうならないために…。
小規模店は月商150万円~
1日6万円の場合×25日=月商150万円、12ヶ月=年商1,800万円。人件費は約1/3なので594万円です。これ位が生業としての成功モデルです。客単価600円なら100人、客単価1,000円なら60人、3,000円なら20人が必要です。
成功するには客単価の高いビジネスモデルの構築が必要です。
中小規模店は月商300万円以上
事業としてなら月商300万円~1,000万円。私が担当してきた店は1店舗で年商1億円位まで。小規模店から大型店まで対応させて頂きました。
1. 家賃の高い物件は厳しい
一般的に家賃は売上の10%以下、理想は5%です。
都心の家賃は坪あたり3万円以上です。15坪で3万円なら45万円、さらに保証金も約10ヶ月。これでは開業するのも、継続していくことも大変です。
居抜き店舗、自宅、自宅の敷地、古民家など、家賃が低い物件での開業をおすすめ致します。
2. ムダなお金はかけない
投資した金額は減価償却する必要があります。だから必要以上に無駄な投資はお勧めしません。
スケルトンだと坪あたり内装工事だけで40万円以上かかります。厨房機器も合わせると開業費用は坪あたり50万円以上となります。 15坪の店なら最低でも15坪×50万円で750万円以上かかります。
低資金で開業するにはドライキッチンがオススメ。給排気工事もポイントです。
3. 成功する理由は “利用動機”
お客様は何で来店するの? 来店するには何だかの理由があります。
昨今では美味しいメニューが簡単に提供できるようになりました。理由は、冷凍技術・厨房機器・商材会社など、様々なところで進化しています。ユーチューブではプロのノウハウも開示されています。
うなぎ屋も、焼肉屋も、寿司屋も…、未来を切り開くのは素人の方、こだわるのは利益です!
飲食店の開業は、人生の大きな挑戦です。
営業エリアについて
開店改装エリアは東京・埼玉・神奈川・千葉県。オンラインエリアは全国対応。

電話でのご相談
ご質問はお気軽にどうぞ
電話番号:049-239-3118 (月~金 9時~17時)