
揚物がおすすめの理由
イートイン、テイクアウト、デリバリーと3通りの売上げが見込めるので安心できます。
小スペース、自宅、三等地でもOK、居抜き店舗なら更に低資金で開業可能です。
- 客単価が高い
- 店売、持帰り、宅配ができる
- 低資金で開業できる
- 味のクレームが少ない
- 調理が簡単
さらに調理が比較的簡単で、客単価が高く、食中毒の心配が少なく、味のクレームもほとんどありません。
客単価が高いのが魅力
今日まで多くの方の開業相談を受けましたが、お勧めはとんかつ店です。
フライヤーがあれば、とんかつ・から揚げ・エビフライ・コロッケ…メニューを増やすことも簡単です。

客単価の高さがポイント
例えば、500円の弁当を100個販売すれば売上は50,000円になります。しかし、弁当を100個も作るのは大変な手間がかかります。一般的にテイクアウトの粗利は約50%ですが、とんかつなら店内でもテイクアウトでも、客単価1,000円以上を容易に確保することが出来ます。
施工実績
埼玉県所沢市 ベンチ席に改装、宴席もあります。

埼玉県川越市 カウンター席、ベンチ席…、小上がり席にしました。

低資金で開業できる
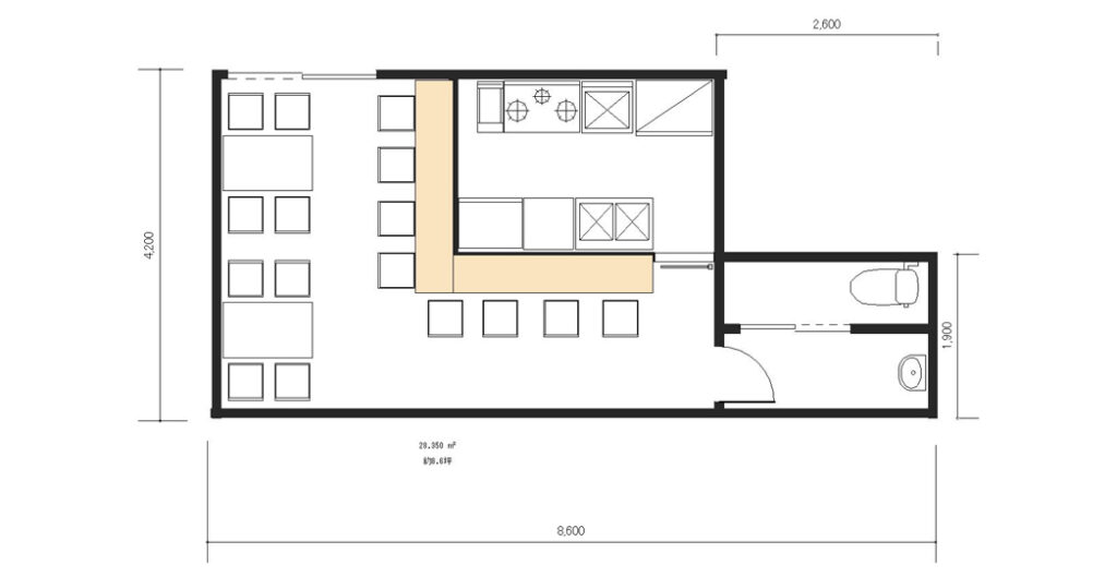
下記はお客様から依頼されて作成した提案図面です。店舗面積9坪位で客席16席、主な厨房機器はフライヤー、ガステーブル、冷凍冷蔵庫位です。厨房機器を一式を揃えても大きな金額にはなりません。

フライヤーがあればOK
ガス式より電気式がオススメ!
理由は、油の温度の立ち上がりが早く、温度が安定しています。
設定も簡単、油の劣化が少なく掃除も簡単、排気熱が少ないから汚れにくく、直火ではないので火災の心配も少ない。
問題は3相200Vが引けるかどうか。
価格はガスの2倍以上、それでも価値があります。
電気を利用した方はガスには戻りません!

売上について
10坪で15席の売上は…月商135~225万円
10坪の店で客席15席、客単価1,200円、25日営業として
昼に2回転+夜に1回転で合計3回転、15席×3回転=45名、45名×1,200円=54,000円→ 1ヶ月=54,000円×25日=135万円
昼に3回転+夜に2回転で合計5回転、15席×5回転=75名、75人×1,200円=90,000円→ 1ヶ月=90,000円×25日=225万円
20坪で30席の売上は…月商324~540万円
20坪の店で客席30席の場合、客単価1,200円、30日営業として
1日3回転で30席×3回転=90名、90名×1,200円=108,000円 → 1ヶ月=10.8万円×30日=324万円
1日5回転で30席×5回転=150名、150名×1,200円=180,000円 → 1ヶ月=18万円×30日=540万円
牧場直送、熟成ブランドで売る!
右の店は私が35年前に開業のお手伝いしたとんかつ店です。とても大事なお客様です。
私のことを信用して頂いて数回のリニューアルをしました。 売上アップをテーマに協力させて頂きました。
他にも当社のお客様で20年~30年と長く続いている店がたくさんあります。長く営業できること、そのことがとても重要なことだと思います。

営業エリア
東京都、埼玉県、および神奈川県、千葉県の一部が営業エリアです。
※仕事状況などで、ご希望に速やかに対応できない場合もございます。予めご了承ください。

※内容によりますが、土・日曜・祝祭日の対応も可能です。
電話のお問合せは
まずはお気軽にお問合せ下さい。匿名可、強引な売込などは一切ございません。こちらから住所氏名を聞くことはございません。
電話 049-239-3118 月~金 AM9時~PM5時
電話相談は無料です。来社相談・出張相談は初回だけ費用がかかります。