できるだけ無記名で掲載させて頂いています。
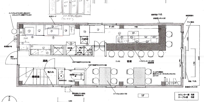
東京都 渋谷 カフェレストラン
デザイナーを入れての内装工事、完成2025、12月引き渡し…

下記は厨房設計施工、完成、消防検査も立ち会いOK、ほとんど新品を設置しました。

下記はカフェレストランの工事状況、トイレも何もないスケルトンから店舗工事

焼肉ホルモン店 川崎市
焼肉店 川崎市 2号店目を開店しました。

店内の引き渡し時の写真です。

東京都 立川市
東京都立川市に惣菜店を開店しました。女性の方から開業の相談からスタート・・・・

焼き鳥居酒屋、新規開業、施工中 千葉県

11月7日更新しました。
十割そばの導入 千葉県
スクリュー式十割そば製麺機の納入指導。ミキサーと合わせて月々19,600円のリースにて販売。大変好評とのことです。

ガステーブル交換工事 板橋区の保育園
階段を下って搬入、既存撤去処分、ガス工事手配一式

食洗機の交換工事 練馬区の保育園
食洗機3相200Vのリターン式、同タイプの入替え、撤去処分、給排水工事、試運転一式

レストラン 所沢 新規開業
セルフ、テイクアウト重視の店づくり。ドライキッチン仕様で下がり壁なし、グリーストラップなし…、内装工事は一式376万円、エアコン、消防検査申請、消防設備工事込み。厨房機器は新品一式で157万円位。11月1日開店しました。


小規模のレストラン 川崎市多摩区
川崎市の小料理店、厨房機器の搬入設置、一式。他社で納期が間に合わないということで当社で納入しました。厨房機器一式で93万円位。

●神奈川県川崎の焼肉店、居抜店舗の図面と見積打合せ
●東京都葛飾区、菓子店の図面見積打合せ
●その他
8月17日更新しました。
▶8月2日 テイクアウト店 所沢 内見調査、図面と見積の依頼で訪問、相見積りということで対応…。

▶8月5日、焼肉店の居抜き物件の内見相談、千葉県行徳。大型店で焼肉テーブルはあり、厨房機器は全く無い状況…。

新宿歌舞伎町のレストラン 新規開店
開店の数日前の写真です。厨房機器は1点覗いてすべて新品。アンダーカウンター食洗機、リーチイン冷蔵ショーケース、製氷機は95kgタイプ、フライヤーは2台、冷凍冷蔵庫は奥行き800タイプ、天カセエアコン交換…


歌舞伎町なので当然、消防検査。加熱機器は固定、排気フードと厨房機器、厨房の展開図の提出…。

6月の仕事をまとめてみました。
●歌舞伎町でカフェレストラン、工事中
●世田谷、焼肉開店の相談、現調して計測…
●国立市で弁当惣菜店の開業相談、内見して計測、見積
●渋谷でスナック居抜き開店、厨房機器入換の相談に行く。
●川越市、スイーツ店の開業相談、図面作成、見積提出
●墨田区で食堂開業相談、物件調査・売上相談・工事費の相談
上記は私が訪問対応しています。その他、開業相談、見積依頼あり。
●荒川区、テイクアウト、居抜き開業の内見相談、その他。
●町田市、ラーメン店を焼肉店に、内見、現調、見積相談
●町田市、15坪スケルトンをラーメン店に、内見調査・見積依頼
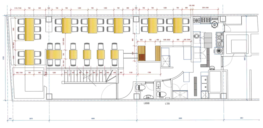
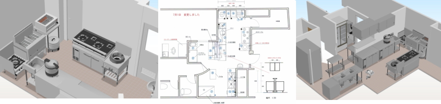
カフェレストラン 新宿区歌舞伎町
2年前に仕事をして今回もご依頼頂きました。5月に内見して、6月着工、只今工事中、7月後半引渡し予定です。店舗工事1,700万円、厨房機器380万円、その他。詳細はネットでは非公開とします。



上記は店舗レイアウト図面、下記は厨房図面(3D図面)

歌舞伎町、家賃は100万円超え!
東京都内の家賃坪3万円~、上記の新宿歌舞伎町の家賃は月100万円以上(只今工事中)渋谷店はそれ以上です。都心では空き物件が無いようです。先日、大井町から相談に来られた方も言ってました。

出張相談承ります。有料相談・無料見積
東京の仕事が多いのですが、埼玉県・神奈川県・千葉県も対応しています。仕事内容や場所、状況に合わせて対応させて頂きます。






開業相談に行ってきました 15,000円

墨田区で食堂の開業相談
開店物件の訪問調査2ヶ所、周辺調査、競合店調査をする。
開業予算は自己資金で2,500万円~、
目標売上は年商5,000万円~
私の評価は30点~、成功は難しいというアドバイスをしてきました。
スイーツのテイクアウト 川越市
スイーツ店の開業相談、物件の計測、図面の作成、見積作成…。木造、50年以上の物件

国立で惣菜弁当店、内見調査
内見調査、レイアウト図面・見積作成、ダクト工事が4Fの屋上へ


荒川区でテイクアウト店、内見調査
内見調査、計測、図面作成・見積依頼…、厨房込みの概略見積は500万円~、建物が古くて改装工事が難しい。後日、他社も内見に来るということでした。(相見積)

営業エリア

東京都、埼玉県、および神奈川県、千葉県の一部が営業エリアです。左図参照。
※仕事状況などで、ご希望に速やかに対応できない場合もございます。予めご了承ください。
※内容によりますが、土・日曜・祝祭日の対応も可能です。
電話のお問合せは
まずはお気軽にお問合せ下さい。匿名可、強引な売込などは一切ございません。こちらから住所氏名を聞くことはございません。
電話 049-239-3118 月~金 AM9時~PM5時