飲食店プロデュース、飲食店コンサルタントの開業再生コンサルティング。店舗内装工事と店舗設計、焼鳥居酒屋・そばうどん・ラーメン・お弁当・カフェレストランなど。
仕事の一部をブログとして紹介しています
更新日:2月5日
久しぶりに更新します。
昨年末から1月中旬まで、いつもより多くのご相談がありましたので紹介いたします。
●さいたま市のカフェ、新規開業 14坪、1F、図面見積相談
●千葉県 ラーメン店 新規20坪、借入協力、図面見積提出 進行中
●千葉県 流山 自宅カフェ 図面見積打合せ
●さいたま市のラーメン店、居抜き30坪、改装相談 交渉中
●神奈川県 横浜 ネット通販用 厨房工事 交渉中
●東京都 江戸川区 弁当店 6坪 設計内装工事打合せ 交渉中
●越谷市 宅配チェーンの内装工事 内装工事 見積依頼 交渉中
●埼玉県 立飲み居酒屋 図面見積提出 進行中
その他
下記は鴻巣の立飲み居酒屋のFCチェーンの図面と内装工事風景です。内装工事116万円、厨房機器69万円、設計諸経費10万円、その他。2月中旬完成予定。


下記は、さいたま市 カフェ 3D図面です。

さいたま市 ラーメン店の図面と3D

千葉県 ラーメン店 現場写真 店舗設計レイアウト図面


埼玉県川越市 レストラン開業の続きを公開します。
17坪で内装工事が334万円(税別)坪あたり19万円位。トイレ和式を洋式に、手洗い増設、厨房床は露出、厨房内はキッチンパネル、照明はダウンライトLED・・・。下記は既存、スケルトン状態。


内装工事160万円、給排水工事86万円、電気工事62万円、雑工事26万円、厨房機器160万円、家具73万円、吸排気工事31万円、看板工事11万円、その他。店舗面積17坪、スケルトンから合計629万円(税別)(詳しい資料あり)

厨房機器は格安、しかもリース。搬入設置、試運転も含む。
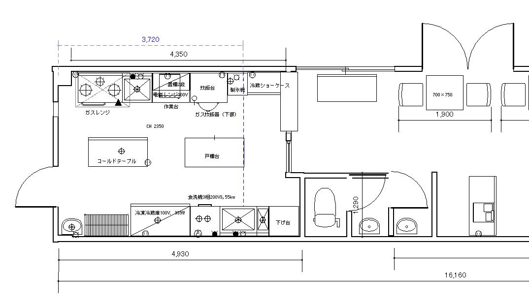
食洗機を含む厨房機器一式を150万円分リースにしました。食器洗浄機、冷凍冷蔵庫(4枚扉)コールドテーブル、ガスレンジ、製氷機、冷蔵ショーケースなど一式。月々の支払いは28,400円です。厨房図面は下記参照。

東京、某有名カレー店、家具の入替え工事
テーブル一式を入替、テーブル4台特注、アンカー固定。既存椅子のレザー貼り替え。家具総額764,000円をリースにて販売、月々11,700円(税別)現地打合せ、搬入設置、取付工事含む。

●東京都、宅配弁当FCチェーン店の開業準備中
●東京都、洋菓子店の開店、打合せ進行中
●東京都、神奈川県、弁当店、見積提出、打合せ中
●千葉県、惣菜厨房、図面打ち合わせ中、その他
4月15日更新
●東京都目黒区のお好み焼き店、図面、見積交渉中
●東京都練馬区のうどん店、図面作成、次回見積交渉
●新大久保の居酒屋、内装工事着工。
●千葉県松戸市、厨房工事見積打合せ中
●神保町のカレー店、打合せ中
●台東区のカフェ、打合せ中
●埼玉県ふじみの市、レストラン打合せ中 その他
横浜市のレストラン
店舗工事中5月連休後には引渡し完了予定。開店は都合により6月。川越から電車で2時間ほど。

所沢の居酒屋
居抜き店舗、間もなく改装工事。5月末日開店予定です。店内改装工事、厨房機器の入替え工事、看板工事など。

埼玉のうどん店、ほぼ完成。
エアコン、家具、看板取付完了。あとは開店日を待って試運転。開店は都合により6月のようです。

1月27日更新
うどん店新規開業、内装工事の状況です。今年は雪も降らずに順調です。厨房納品、フード換気工事は2月中旬の予定です。

気になる立ち食いそば店。
神田で居酒屋改装の打合せ時に、テレビで紹介された日本橋のそば店が気になっていたので寄ってきました。
PM2時に食べたのですが繁盛していました。
繁盛のポイントは・・・。
私は気になる店があるとメモしておいて訪問します。
これも仕事だと捉えています。
川越市の弁当惣菜店
店舗内装工事220万円、厨房機器、看板・その他。厨房機器の中古、看板はお客様で・・・用意する方向でサポート中。下記は平面図です。


1月17日、埼玉県ふじみの市でカフェの打合せ中。
内見調査の上図面、見積に・・・。内装工事の見積は20坪で400万円弱、厨房機器・看板・家具、その他・・・総合計750万円位~。


新横浜へ出張相談 15,000円
既存店の改装と新規店舗の相談に行ってきました。もう一つラーメンの製麺機について相談がありました。
製麺機の導入は止めるように説明、今のまま仕入れた方が良い、とアドバイス。
製麺作業は意外と大変なので、安易に製麺機は進めません。
12月11日更新
東京都練馬区、既存の厨房機器を調べて図面を作成、2月開店に向けて、居抜き店舗をかつ丼屋に。改修工事の打合せ中。

既存厨房機器の再利用、客席の撤去、ベンチ席に。

加須のうどん店の進行状況です。2月末に引き渡し予定、もうしばらくかかります。

弁当店の打合せ状況
現調、レイアウト図面作成。内装工事等の見積提出。見積の内訳:内装工事

加須市のうどん店、新規開業 工事始まりました。
200坪の敷地に建設開始、建物は30坪~。工事費は・・・万円。引き渡し予定は来年です。

居酒屋 新規開業 新宿区 11月開店予定
10月26日、厨房機器の搬入設置。2F階段上げ、人工は6人。厨房機器は20点で200万円位。

2F階段にて搬入のため大変な作業でした。冷凍冷蔵庫、リーチインショーケースなど合計20点。

開店準備中の物件調査中につき動画をアップしました。
新潟まで売上相談に行きました。
7月31日更新しました。
神奈川県横浜市に居酒屋オープンしました。開店日に私も伺いました。写真を撮ろうとしたのですがお客様がすぐに一杯になって撮り損ねました。この店は金沢文庫駅から降りて2分位のところで歩行者道路の好立地です。昼はうどん、夜は居酒屋、店頭では総菜の販売も行います。

6月27日、更新しました。
6月25日、ケーキ店オープン。私も工事担当者と一緒に25日に訪問してみました。

上記は開店25日の開店時の写真、下記は着工前の様子です。

下記は厨房搬入設置時の写真です。

6月20日 神奈川県横浜市、金沢文庫で居酒屋開業工事中、打ち合わせに訪問、写真は内装工事の状況です。7月2日は朝から厨房搬入予定。開店は7月の13日予定です。詳しくは・・・

6月21日、埼玉県加須市で内見調査に訪問。居抜き店舗で内装も厨房機器も一応使える状態でした。看板や家具の入れ替えが必要になります。厨房機器は一部利用できそうです。家賃も安くて、駐車場も取れます。合格点の物件でしたが結論は保留に・・・。

5月14日、更新しました。偶然にも3月~4月は問い合わせが多く、現地訪問も多かった・・・です。
●浅草橋 イタリアンレストラン
●金沢八景 居酒屋
●上福岡 ラーメン店
●足立区 カフェ ・・・その他、現調見積の依頼対応。
新規開業 5月8日より着工しました。
埼玉県 店舗工事費800万円位、厨房機器300万円、その他・・・

図面はこちら、

セルフうどん店 建物から新規開業
埼玉県加須市 確認申請準備中 年内引き渡し、総工事費3,000万円~。下記は客席図面です。

《施工実績》東京都荒川区 ダイニングカフェオープン
仮設工事10万円、解体工事15万円、軽鉄ボード工事23万円、木工事65万円、建具工事10万円、造作家具工事10万円、塗装工事13万円、仕上げ工事30万円、給排水工事27万円、ガス工事16万円、電気工事28万円、換気工事33万円、左官工事4万円、諸経費、その他、合計300万円。厨房機器は別途一式で88万円位。
3社の相見積の上、受注しました。


炭火串焼き居酒屋 新規開業 御徒町にオープンしました。
店舗工事に全部で1,000万円~、厨房機器は200万円~、全て新品、スケルトンからの工事でした。相見積は3社で競争、大衆的な焼鳥居酒屋を創りました。

JRの高架下ということで難しい工事でした。経験豊富なところでなければできない工事です!

オール新品の厨房機器、ダクトは消火器付きのトマホーク、トマフォークうを知らない業者も多いと思います。

ラーメン&つけ麺と餃子の店
ラーメン餃子店の改装工事 品川区戸越銀座、 4社での相見積の競争で受注。内装工事は350万円位、仮設工事12万円、解体工事18万円、左官ブロック防水工事10万円、軽鉄ボード工事20万円、木工事65万円、塗装工事12万円、内装仕上げ工事28万円、雑工事30万円、給排水工事47万円、電気工事31万円、ダクト吸排気工事52万円、その他。厨房機器は一式で100万円位。

お好み焼き店の改装工事、家庭用レベルの厨房を業務用で揃えました。

店舗図面はこちら

2月5日更新しました。
▶2月3日は餃子のテイクアウト店の開業来社相談。所沢でコンビニ経営の方でした。
▶2月7日は千葉県松戸で寿司ロボットの無料実演デモ約束。寿司屋で法事にも。その他。
品川区、戸越銀座のお好み焼き店を餃子ラーメン店に改装工事。2月5日着工予定。オーナーは複数店を経営しています。

埼玉県本庄市物件、内見調査、提案図面と見積に・・・

東京上野、御徒町で炭火居酒屋工事中、2月末引き渡し予定。JR高架下で難しい工事。普通の内装工事店ではできない工事。排気ダクトはトマフォーク・・・

都電、荒川一中前からすぐ。カフェ工事、引渡し数日前の写真。相見積は3社だったそうです。他の2社は一回来たそうですが、図面も見積も、話が進まなかったそうです。安いだけでは選びたくなかった、そうです。近日に完成の写真予定。

脱サラ、讃岐うどん店、開業に向けてサポート
内見調査1日3件、①相模原、②洗足池、③藤が丘。1月26日、この日はとても寒い1日でした。

相模原駅、以前は居酒屋、家賃13万円は安い。しかし全くのスケルトン・・・。

洗足池駅近くの居抜き物件。造作譲渡金額が高い。居酒屋からうどん店には向かない。・・・

藤が丘、駅から近く。この物件が一番化ける・・・。しかし予算オーバー。
1月21日更新
そば店改装相談
12月7日そば店の改装計画、来社有料相談。30年続いた店をどうするか、という相談。ご家族3人で来社。卓上製麺機のデモも行う。
横浜でうどん店開業、図面契約準備中
9月25日来社相談に来られた方です。横浜の物件を1月末に現調して図面段階に進む予定です。設計プランニングの約束で進行中です。
串揚げ居酒屋計画相談中
建設関係の方で居酒屋開業を希望(串揚げか鉄板焼き)4時間かけて千葉県木更津市より2回にわたり来社、有料相談に来られました。
そば店の開業相談
昨年の10月13日、千葉県佐倉市から4時間かけて開業相談に来られました。いろいろと話しを聞くうちにそば店ではなく、とんかつ店の方が良いと思い、参考になる当社のお客様を紹介。
寿司屋のテイクアウト移転・有料相談
10月27日に来社、スーパーの寿司お持帰りを展開中ですが、移転の相談。寿司にするか、カフェにするか・・・
生餃子の販売ビジネス
9月26日、大手FCチェーンに加盟している方で、今度は独自で事業を始めたいということで来社相談に来られました。地元の野菜を売りに生餃子を看板商品にしたいということでした。仮申込頂いたので3月になったら進行するかもしてません。
うどんや開業相談
8月21日、埼玉県飯能市の方で、うどん屋を開業したいという相談でした。この方は何件かチェーン店などに相談している様子でした。
1月16日更新、店舗内装工事の一部を紹介。
東京都、荒川区のダイニングカフェ
只今工事中。1月完成予定。詳しくは後日公開の予定。店舗図面と現場状況です。都営荒川線が近くを走ります。


埼玉県、本庄市で炭焼き海鮮居酒屋の図面打ち合わせ中
15坪、家賃は安めの〇〇円、保証金も安い。事務所仕様を居酒屋に。予算はぜーんぶで800万円で打ち合わせ中です。


東京都、御徒町で居酒屋、開業準備中
スケルトンからの新規開業準備中、工事はJRの都合で間もなく着工予定です。下記図面参照。写真は近日中に公開予定。厨房機器打合せ中。

神田の大衆居酒屋打合せ中
千代田区神田神保町の大衆居酒屋図面打ち合わせ中、下記図面参照

カリッジュ東京壱号店様12月1日開店しました。
開店の生花がありますが宣伝は一切していません。なのに初日の売上は10万超えです。2名で1名バイト。詳しくはまた公開する予定です。
住所はこちら 電話は042-306-3299 東村山市栄町3-15-20 AM11時~PM8時?確認要。

開業の投資は全部で300万円台でした。
カリッジュさんのホームページはこちら、ただいま急成長、関東エリアはこれからのようです。

11月3日更新間もなく着工、11月末日オープン予定

カリッジュから揚げ持ち帰り専門店様、東京1号店開業に向けて内装工事の着工準備中、詳しくは開店後にも掲載の予定です。
内見状況、以前は海鮮丼のテイクアウト店だったようです・・・。
内装工事150万円位、厨房機器50万円位、看板、ガス工事別途、低予算で開業できるのが魅力的だと思います。

場所は東村山市栄町3-15-20です。11月後半~12月始めにはオープンしています。

善太郎食堂様 10月に東京都新宿区に開店しました。
新宿区でも家賃15万円で駅前の立地、こんな場所があるんです!店舗面積10坪で家賃15万円

内装工事350万円、厨房機器150万円、家具看板40万円、エアコン30万円、その他。合計で600万円位で開業。トイレも厨房も作り変え、モルタル仕上げで床排水、グリーストラップを付けて床は流せるように。ドライキッチンなら安く上がりますが・・・。

内装工事200万円、厨房機器200万円、看板30万円、その他、合計で450万円ぐらい。お客様の予算で開業できました。串揚げの調理研修から開業までのサポート。居抜き店舗で開業、立地条件や予算を含めて希望通りの開業ができ喜んだ頂いています。
下記が完成、オープンして1週間目

手打そば店開業しました
石臼、軟水器、1番釜、カツオ節削り器など拘り抜いた店づくりです。

自宅を改装して新規開業、当社に相談に来られて約1年後に開業されました。オーナーは手打ちそば店を開業するのが夢だったそうです。
香港でそばうどん店を開業されました。
卓上製麺機での製麺などをサポートしました。開業の写真を送って頂きましたので公開します。当社にはるばる、2回来られて実演しました。

お客様の紹介(一部)
とんかつ店 埼玉県川越市

手打ちそばうどん 埼玉県三芳町

十割そば店 千葉県

鳥割烹 東京都

釜めし和食店 埼玉県所沢市

うどん和食店 埼玉県さいたま市

とんかつ店 埼玉県所沢市

うなぎ料理店 埼玉県志木

和食店 埼玉県毛呂山

手打ちそば店 埼玉県鶴ヶ島市

ケーキ&カフェ 埼玉県川越市

カフェレストラン 埼玉県川越市

串揚げ串焼き居酒屋 埼玉県川越市

手打ちそば 埼玉県北本市

ラーメンつけ麺 東京都 板橋区

串焼き居酒屋 東京都

広島お好み焼き 東京都西東京市

自家製うどん 埼玉県さいたま市

ダイニングバー 埼玉県川越市

追加準備中
お客様インタビュー
手打そばうどん富(トメ)様 埼玉県所沢市三芳町 インタビューにて
![]() |
リニューアルしたら、今まで見たことのない新規客が増えました。看板の効果にびっくりしています。 寿司をメニューに取入れて大正解、ランチにも宴会に人気です。セットメニューが売れています。メニューブックを新しくしたことで売上の効果を実感しています。野村さんは強要しないところがいい。店の意見を尊重してくれるところに共感しました。 |
釜めし奈加 様 所沢市西狭山ケ丘 インタビューにて
![]() |
野村さんとは25年の付き合いになります。厨房設計や厨房機器の相談が中心でしたが、10年ほど前から集客について販促で協力をして頂いています。最初のころは1ヶ月に200万円も売上を伸ばすことができました。集客について考えるとワクワクして夜も眠れない状態でした。個人では勉強しても情報が足りません。今後もその辺をサポートしてほしい。 |
とんかつ十割そば和幸 様 川越市中福 インタビューにて
![]() |
野村さんとは開業の時から30年の付き合いになります。 売上が下がり店舗改装でも2回お世話になりました。 その度に売上が伸びて大変助かりました。メニューや看板、サービス券など、集客についての相談ができるのが助かります。十割そばを導入して10年以上になります。とても好評で、とんかつ屋なのにそばだけ食べに来る人もいます。 |
株式会社 ウィットライフ 川越市旭町 代表取締役 紫藤様
![]() |
看板デザインとチラシ、インターネットの集客でお世話になりました。 看板はとても効果的で店の前を通る子供にも、すぐに認知してもらえます。私が良くいく遠方の飲食店も、野村さんが仕事をされていたので驚きました。これからはデジタルの時代、アナログとデジタルの融合でより効果的な集客が必要です。野村さんに頼べば売上が確実に上がると思います。 |
串カツ居酒屋の実店舗研修 山田様インタビューにて
![]() |
串カツ居酒屋を開業しようと思って色々とネットで調べていました。飲食店は初めてなので不安もありました。串揚げの研修では、実店舗でお客様に接することができてとても良かったです。自分で揚げた串カツを直にお客様にお持ちする。最初はドキドキしましたが、すぐに慣れました。 串カツ以外にも学ぶことができて良かったです。 |
十割そば 千葉県 匿名 オーナー様(匿名)インタビューにて
![]() |
飲食店の経営は初めてなので最初からプロに頼むつもりでした。店舗のプランニングから厨房設計施工までお願いしました。最初は手打そばの経験を積んだのですが、手打ではなく製麺機で考えていました。いろいろ相談した結果、実演デモを見て油圧製麺機に決まました。平日の昼間だけの営業ですが、3年目の今では多いときは150食を超えます。客単価も高いので売り上げも伸びます。 |
東京都豊島区 割烹料理オーナー(匿名)インタビューにて
![]() |
1年位前からホームページを拝見していました。いろいろな会社と比較して一番信用できそうだと思いました。 相見積はしませんでした。もしも途中で疑問に感じたら他社に依頼するつもりでしたので。職人さんも丁寧で本当にいい仕事をしてくれました。厨房設備も使いやすく満足しています。値段も安かった。もう少し高くても良かったと思うくらいです。不満な点はありません。 |
リゾートダイニングCOCOSIS 川越市 オーナー様 インタビューにて
![]() |
正直に言うと3~4社に声をかけ、見積もお願いしていました。御社に決めたのは値段が安かったのが一番、信用の点でも安心できると思ったからです。図面契約をして安心して進めることができました。 私は調理人なので厨房に関して妥協したくなかった。その点からいっても、御社に頼んで良かったと満足しています。 |
カフェ シモキタトナリ 様 東京都 インタビューにて
![]() |
DIY手づくりでカフェを開業したいので手伝ってくれるところを探しました。相見積したのですが他社は100万円以上高かったと思います。低資金で開業できたところが良かった。 吊戸棚、エアコン、家具などをネットで購入しました。 カウンター、壁、天井は自分で塗装しました。 |
続きは施工実績-2をご覧ください。
図面と見積が無料です!
店舗工事の見積は無料です。経験豊富な飲食店の専門家のアドバイスを参考にしませんか。無料で内見調査に伺います。物件の図面が無ければ計測いたします。水道、電気、ガス、吸排気についてもチェック致します。1週間位でレイアウト図面と見積を作成いたします。
無料見積のお願い
●この物件で開業したいという物件の場合
●提案図面と見積金額が合えば注文してもよいとお考えの方。
以上2点が無料見積の対象です。※当て馬で無ければ相見積でも全く構いません。
営業エリア

東京都、埼玉県、神奈川県、千葉県が中心です。また、栃木県、群馬県、茨城県の一部も対応しています。右図参照。
※仕事状況などで、ご希望に速やかに対応できない場合もございます。予めご了承ください。
※ご希望により、土・日曜・祝祭日の対応も可能です。
お問合せは…
下記のフォームからお申込み下さい。










